Ventilatie cu recuperare de caldura Nilan Compact P XL AIR9

Nilan

Compact P XL AIR9 este un echipament cu multiple funcții, cu trei instalații combinate într-un format compact. Este echipamentul ideal pentru case de mari dimensiuni. Compact P XL AIR9 asigură ventilația locuinței, producția de apă caldă menajeră și încălzirea locuinței datorită unei pompe de căldură aer-apă integrată.

Debitul de aer:

Minim: 50 m³/h   Maxim: 430 m³/h

Cod Produs: C4777 Ai nevoie de ajutor? 0744339554
  • Descriere
  • Caracteristici
  • Review-uri (0)

Combinând toate cele trei funcții într-un singur echipament, salvați un spațiu considerabil în camera tehnică. Un alt avantaj de luat în considerare este că sistemele de control funcționează la unison, optimizând astfel consumul de curent electric și permițând o reducere semnificativă a acestuia.

Dispunând de pompă de căldură aer-apă înseamnă și că nu mai este necesară îngroparea unor pompe geotermale suplimentare, ce ar ocupa altfel un spațiu considerabil.

 

Specificații Detalii
Clasa de eficiență energetică pentru producerea apei calde A
Profil consumator, boiler de apă L (mare)
Rezervor de apă caldă 180 l
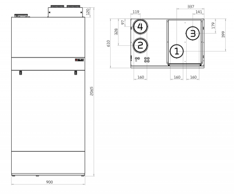
Dimensiuni (L x l x Î) 900 x 610 x 2065 mm
Greutate 202 kg
Tip panou Tablă din oțel Aluzinc, acoperire cu pulbere albă RAL9016
Tip schimbător de căldură Schimbător de căldură cu flux contrar din polietilentereftalat
Tip ventilator EC, rotație constantă
Clasa de filtrare Greencycle ISO 16890 Grosier 75% (G4)
Conexiuni conducte Ø160 mm
Agent frigorific R134a
Încărcare agent frigorific 2 kg
Scurgere condens PVC Ø20 x 1,5 mm
Tensiune de alimentare 230V 50/60 Hz
Putere maximă intrare/consum 2,4 kW / 10,4 A (*1) – 3,6 kW / 15,6 A (*2)
Putere standby 3 W
Clasa de etanșeitate IP31
Temperatura ambientală -20 / +40 °C
Scurgere externă < 1,4 % (*3)
Scurgere internă < 1,1 % (*4)
Note *1 – Intrare fără element de încălzire (accesoriu)
  *2 – Intrare Compact P XL Polar
  *3 – La ± 250 Pa conform EN 308/EN 13141-7
  *4 – La ± 100 Pa conform EN 308/EN 13141-7

AIR9 (Pompă de căldură)

Specificații Detalii
Clasa de eficiență energetică pentru încălzire A+++
Eficiență energetică sezonieră pentru încălzire 206%
Dimensiuni (parte interioară) (L x l x Î) 550 x 300 x 1100 mm (integrată în Compact)
Greutate (parte interioară) 257 kg (inclus rezervorul tampon AIR9)
Dimensiuni (parte exterioară) (L x l x Î) 938 x 673 x 1318 mm
Greutate (parte exterioară) 165 kg
Compresor variabil Da (30 – 100%)
Tensiune de alimentare (parte interioară) 400/230V 3L+N+PE, 16A, 50 Hz
PMAX (parte interioară) 6,1 kW
Dimensiunea siguranței (parte interioară) 16A
Consum de energie în standby 2,5 W
Încălzire electrică suplimentară 2 x 3 kW
Rezervor tampon (integrat) 50 L
Presiune de proiectare (încălzire centrală) 4 bar
Presiune de deschidere supapă siguranță (încălzire centrală) 2,5 bar
Vas de expansiune (încălzire centrală) 8 litri
Vas de expansiune suplimentar 0,5 bar
Volum maxim aer 3.400 m³/h
Clasa de etanșeitate ventilator IP54
Tensiune de alimentare (parte exterioară) 230V 1 N+PE, 50Hz
PMAX (parte exterioară) 3300 W
Dimensiunea siguranței (parte exterioară) 16 A
Putere nominală, pompă A (max/min) 31/99 W
Curent nominal, pompă A (max/min) 0,2/0,63 A
Pierdere de presiune condensator (încălzire centrală) 15 kPa/0,42 l/s
Conexiune încălzire centrală 3/4”
Agent frigorific R410A
Încărcare agent frigorific 3,15 kg
Presostat presiune joasă (pornire/oprire) 2,2/3,4 bar
Presostat presiune înaltă (pornire/oprire) 42/33 bar
Temperaturi de funcționare -22 °C → 50 °C
Temperatura debit încălzire centrală 25°C → 45°C
Dimensiune conexiune 1”
Putere termică PH cu compresor variabil la 7°C/35°C, conform EN 14511:2012 (max. 5400 RPM) 8,4 kW
Putere termică PH cu compresor variabil la 2°C/35°C, conform EN 14511:2012 (max. 5400 RPM) 6,7 kW
Putere termică PH cu compresor variabil la -7°C/35°C, conform EN 14511:2012 (max. 5400 RPM) 5,7 kW
Putere termică PH cu compresor variabil la -15°C/35°C, conform EN 14511:2012 (max. 5400 RPM) 4,5 kW
Putere termică PH cu compresor variabil la 7°C/45°C, conform EN 14511:2012 (max. 5400 RPM) 7,8 kW
Putere termică PH cu compresor variabil la -7°C/45°C, conform EN 14511:2012 (max. 5400 RPM) 5,4 kW
SCOP testat conform EN 14825:2012* 5,11
Pdesign (tout -10°C) 5,21 kW
Note *SCOP (COP sezonier) este pentru ”utilizare la temperatură joasă, climă medie, debit definit, reversibil”
 

Capacitate
Capacitatea unității standard în funcție de qv și Pt ext.

Valorile SEL conform EN 13141-7 sunt pentru unități standard cu filtre ISO 16890 Grosier 75% (G4) și fără element de încălzire.

Valorile SEL includ consumul total de energie al unității, excluzând controlul. Testat conform EN 13141-7.

Atenție! Valorile SEL sunt măsurate și indicate ca o valoare totală pentru ambele ventilatoare.

 

COP (aer-aer)

Factorul de putere termică COP [-] pentru aerul de alimentare în funcție de temperatura exterioară t21 [°C] și debitul de aer qv [m³/h], conform EN 14511, la o temperatură a camerei t11 = 21°C.

COP conform EN 14511 este calculat pentru combinația dintre pompa de căldură și schimbătorul de căldură cu flux opus.

Curba albastră: COP aer-aer
Curba roșie: Puterea termică a aerului de alimentare

 

 

Eficiența termică

Eficiența termică pentru unitățile cu schimbător de căldură cu flux opus, conform EN 308.

Notă! Eficiența termică este valabilă doar pentru schimbătorul de căldură cu flux opus (fără funcționarea pompei de căldură).

 

 

Puterea termică a aerului de alimentare

Puterea termică Qc [W] în funcție de qv [m³/h] și temperatura aerului exterior t21 [°C]. Conform EN 14511, t11=21°C (aer extras).

Puterea termică reprezintă contribuția la încălzirea camerei, adăugată aerului proaspăt prin intermediul Compact P XL în aerul de alimentare.

Pierderea de ventilație reprezintă căldura pierdută fără recuperare de căldură la debitul de aer specificat.

Pierderea de ventilație: – – – – – – – – – – – –
Puterea termică: ________________

 

Apă extrasă

Volumul extras în litri Vmax [L] din rezervorul Compact P în funcție de temperatura apei extrase t [°C] și temperatura rezervorului la 40°, 50° și 60°C.


 
 
 

 


 
 
 

Date acustice

Datele acustice sunt pentru qv = 275 m³/h și Pt, ext = 100 Pa, conform EN 9614-2 pentru suprafețe și EN 5136 pentru conducte.

Nivelul de putere sonoră LWA scade odată cu reducerea volumului de aer și a presiunii de retur.

La o distanță dată, nivelul de presiune sonoră LpA va depinde de condițiile acustice de la locul de instalare

Vezi mai mult Informatii conformitate produs

Debit De Aer : 430 m3/h

Daca doresti sa iti exprimi parerea despre acest produs poti adauga un review.

Review-ul a fost trimis cu succes.

Compara produse

Trebuie sa mai adaugi cel putin un produs pentru a compara produse.

A fost adaugat la favorite!

A fost sters din favorite!