Ventilatie cu recuperare de caldura Nilan Compact S

Nilan

Compact S este un echipament de ventilație, care produce apă caldă menajeră, ideal pentru case și apartamente de dimensiuni medii.

Debitul de aer:

Minim: 75 m³/h   Maxim: 340 m³/h

Cod Produs: C4781 Ai nevoie de ajutor? 0744339554
  • Descriere
  • Caracteristici
  • Review-uri (0)

Compact S salvează un spațiu considerabil în camera tehnică, fiind – așa cum sugerează și numele său – un echipament compact. Un alt avantaj de luat în considerare este că sistemele de control funcționează la unison, optimizând astfel consumul de curent electric și permițand o reducere semnificativă a acestuia.

 
Specificații Detalii
Clasa de eficiență energetică pentru producerea apei calde A
Profil consumator, boiler de apă L (mare)
Rezervor de apă caldă 180 l
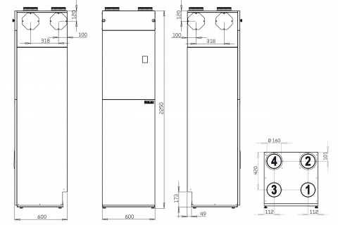
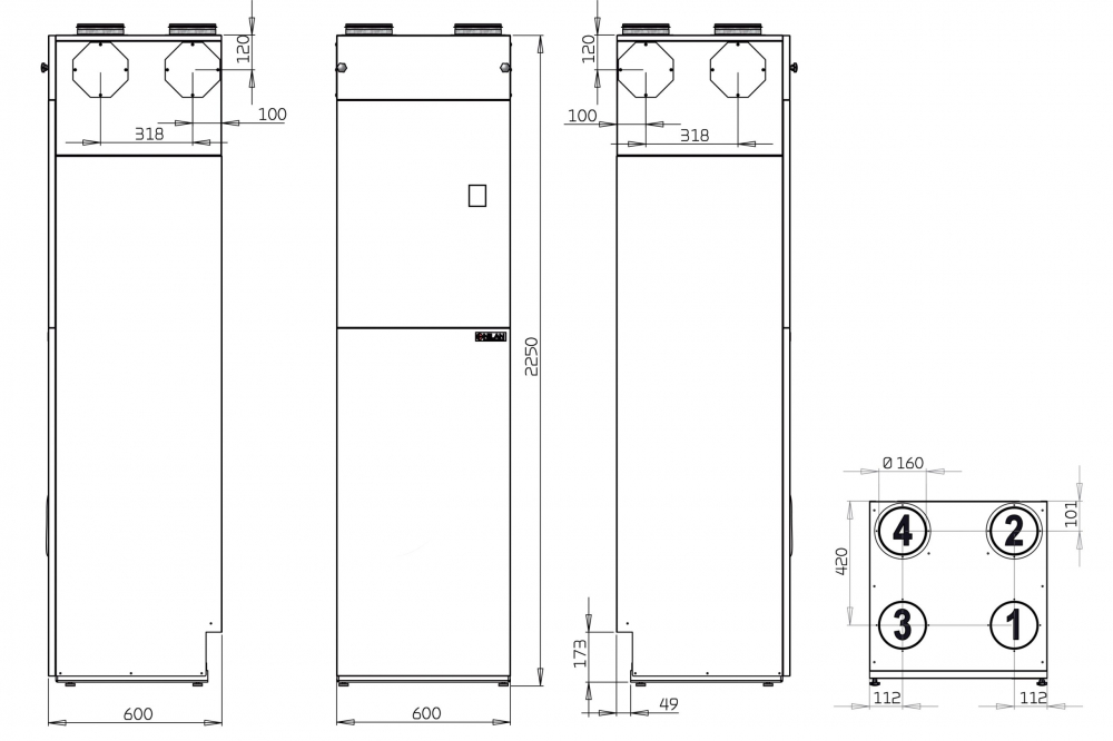
Dimensiuni (L x l x Î) 600 x 600 x 2250 mm
Greutate (Standard / Polar) 192 / 196 kg
Tip panou Tablă din oțel Aluzinc, acoperire cu pulbere albă RAL9016
Tip schimbător de căldură Schimbător de căldură cu flux contrar din polietilentereftalat
Tip ventilator EC, volum constant
Clasa de filtrare Greencycle ISO 16890 Grosier 75% (G4)
Conexiuni conducte Ø160 mm
Scurgere condens PVC Ø20 x 1,5 mm
Agent frigorific R134a
Încărcare agent frigorific 2 kg
Tensiune de alimentare 230V 50/60 Hz
Putere maximă intrare/consum 2,2 kW / 9,6 A (*1) – 2,8 kW / 12,2 A (*2)
Putere standby 3 W
Clasa de etanșeitate IP31
Temperatura ambientală -20 / +40 °C
Scurgere externă < 0,78 % (*3)
Scurgere internă < 1,47 % (*4)
Note *1 – Intrare fără element de încălzire (accesoriu)
  *2 – Intrare Compact S Polar
  *3 – La ± 250 Pa conform EN 308/EN 13141-7
  *4 – La ± 100 Pa conform EN 308/EN 13141-7

Capacitate
Capacitatea unității standard în funcție de qv și Pt ext.

Valorile SEL conform EN 13141-7 sunt pentru unități standard cu filtre ISO 16890 Grosier 75% (G4) și fără element de încălzire.

Valorile SEL includ consumul total de energie al unității, excluzând controlul. Testat conform EN 13141-7.

Atenție! Valorile SEL sunt măsurate și indicate ca o valoare totală pentru ambele ventilatoare.

 

COP (aer-aer)

Factorul de putere termică COP [-] pentru aerul de alimentare în funcție de temperatura exterioară t21 [°C] și debitul de aer qv [m³/h], conform EN 14511, la o temperatură a camerei t11 = 21°C.

COP conform EN 14511 este calculat pentru combinația dintre pompa de căldură și schimbătorul de căldură cu flux opus.

Curba albastră: COP aer-aer
Curba roșie: Puterea termică a aerului de alimentare

 

 

Eficiența termică

Eficiența termică pentru unitățile cu schimbător de căldură cu flux opus, conform EN 308.

Notă! Eficiența termică este valabilă doar pentru schimbătorul de căldură cu flux opus (fără funcționarea pompei de căldură).

 

 

 

Apă extrasă

Volumul extras în litri Vmax [L] din rezervorul Compact S în funcție de temperatura apei extrase t [°C] și temperatura rezervorului la 40°, 50° și 60°C.


 
 
 

Date acustice

Datele acustice sunt pentru qv = 210 m³/h și Pt, ext = 100 Pa, conform EN 9614-2 pentru suprafețe și EN 5136 pentru conducte.

Nivelul de putere sonoră LWA scade odată cu reducerea volumului de aer și a presiunii de retur.

La o distanță dată, nivelul de presiune sonoră LpA va depinde de condițiile acustice de la locul de instalare.

Vezi mai mult Informatii conformitate produs

Debit De Aer : 340 m3/h

Daca doresti sa iti exprimi parerea despre acest produs poti adauga un review.

Review-ul a fost trimis cu succes.

Compara produse

Trebuie sa mai adaugi cel putin un produs pentru a compara produse.

A fost adaugat la favorite!

A fost sters din favorite!